Erweiterung Alterszentrum Weggis

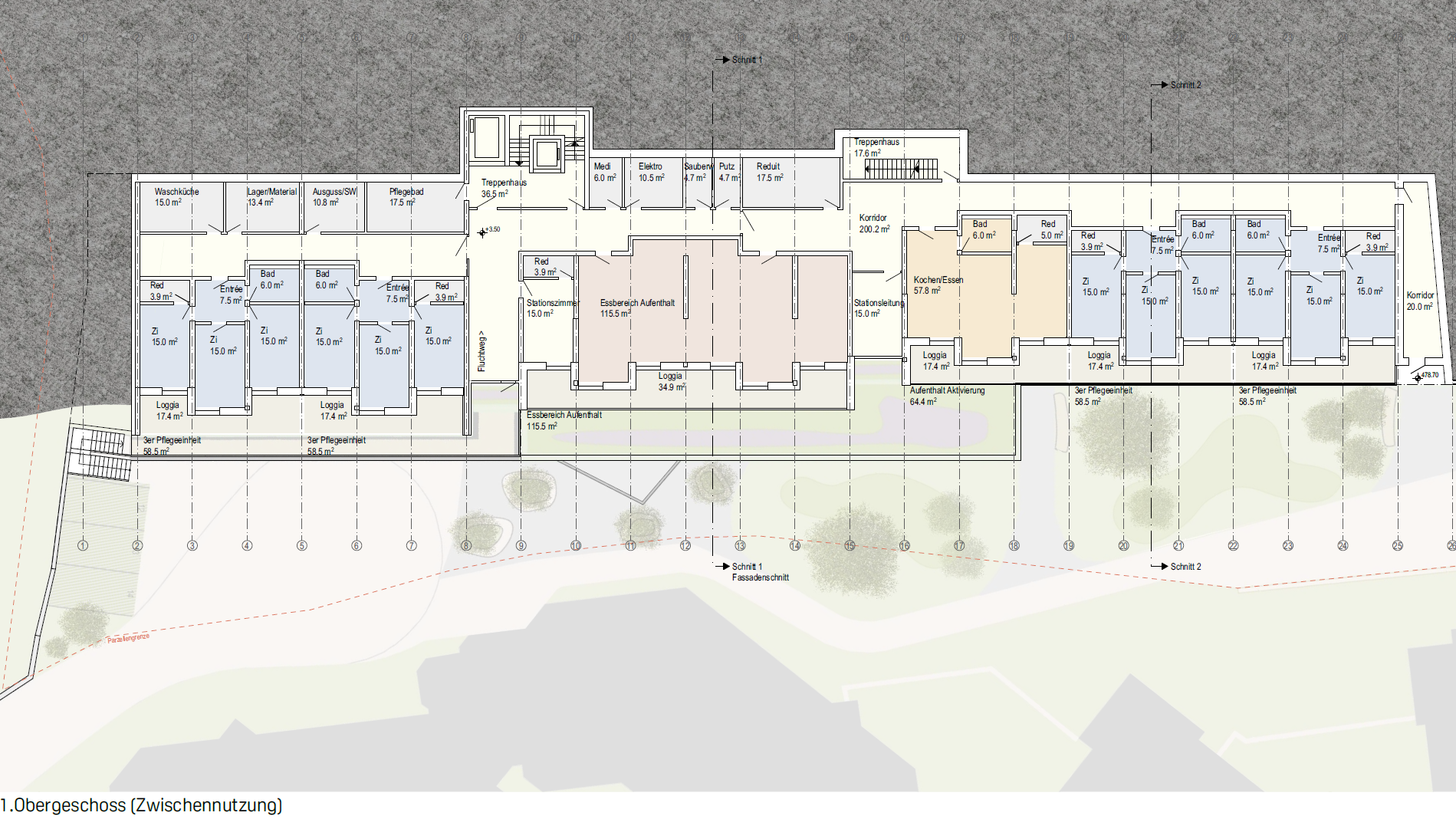
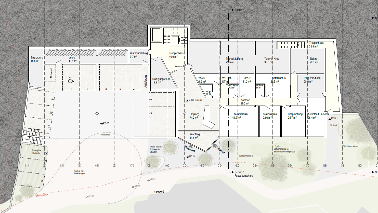
Der Entwurf schöpft aus der besonderen Lage mit Blick auf Berge und See. Durch horizontale Terrassierung fügt sich der Baukörper trotz seines Volumens selbstverständlich in die Landschaft ein. Ein verbindender Sockel bildet das Fundament für versetzt angeordnete Wohn- und Pflegegeschosse.

Die Höhenstaffelung, klare Gliederung und reduzierte Architektursprache verleihen dem Ensemble Leichtigkeit. Materialien wie gestockter Beton, Holz und rotbrauner Putz orientieren sich an der Bergwelt und verbinden Robustheit mit Wärme. Der überhohe Sockel betont den Eingang und stärkt die Präsenz.

Die Umgebung nimmt die Topografie auf: strukturierte Bepflanzungen, einheimische Gehölze und Wildblumen fördern Biodiversität, schaffen Sichtschutz und Aufenthaltsqualität. Der Hauptzugang mit Sitzgelegenheiten wird zum Ort der Begegnung.

Im Demenzgarten regen Wasser, Pflanzen und Düfte die Sinne an. Der gesamte Aussenraum ist barrierefrei, bewegungsfördernd und nachhaltig nutzbar.

Realisierung

2024

Ort

Weggis

Kompetenzen

Wettbewerbe

Arealentwicklung

Projektplanung

Nutzung

Wohnen

Öffentlich

Erweiterung Alterszentrum Weggis

Der Entwurf schöpft aus der besonderen Lage mit Blick auf Berge und See. Durch horizontale Terrassierung fügt sich der Baukörper trotz seines Volumens selbstverständlich in die Landschaft ein. Ein verbindender Sockel bildet das Fundament für versetzt angeordnete Wohn- und Pflegegeschosse.

Die Höhenstaffelung, klare Gliederung und reduzierte Architektursprache verleihen dem Ensemble Leichtigkeit. Materialien wie gestockter Beton, Holz und rotbrauner Putz orientieren sich an der Bergwelt und verbinden Robustheit mit Wärme. Der überhohe Sockel betont den Eingang und stärkt die Präsenz.

Die Umgebung nimmt die Topografie auf: strukturierte Bepflanzungen, einheimische Gehölze und Wildblumen fördern Biodiversität, schaffen Sichtschutz und Aufenthaltsqualität. Der Hauptzugang mit Sitzgelegenheiten wird zum Ort der Begegnung.

Im Demenzgarten regen Wasser, Pflanzen und Düfte die Sinne an. Der gesamte Aussenraum ist barrierefrei, bewegungsfördernd und nachhaltig nutzbar.

Realisierung

2024

Ort

Weggis

Kompetenzen

Wettbewerbe

Arealentwicklung

Projektplanung

Nutzung

Wohnen

Öffentlich